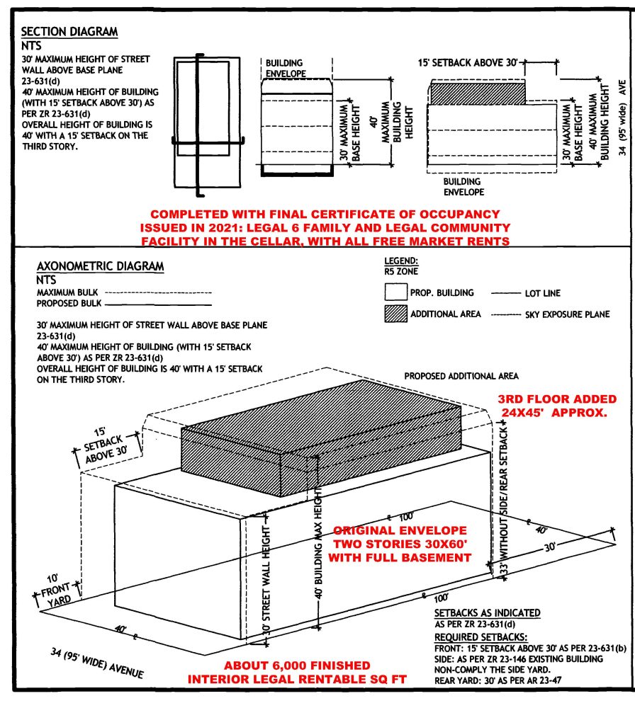
#Justlisted Fully Rebuilt/Renovated in 2021 an all brick #multifamily with community facility and with all market rents (no rent control, no rent stabilization) in #Corona, close to the no. 7 train, right on 34th Ave. Corona is up and coming and the Willets Point Development will add to the value that it already has!
Legal 6 family plus Community facility with Three vacancies offered! All tenants pay their own heat and utilities. For comparison purposes and so you get an idea of the uniqueness of this property it is Better than having two Three families together and the expenses are lower. Just the rent of the community facility pays your entire real estate taxes. With approximately 6,000 sq ft of interior renovated space, the property also features a 1 car garage with private driveway, private backyard and All legal income. Amazing opportunity for the Investor of vision and a true opportunity to build #GenerationalWealth ! For full income and expenses text me your full name and email at 917-559-2002. Professional interior photos coming soon.
